lundi, 10 octobre 2005
Travaux Maine Mouchotte rue du départ : la concertation en question
Nous recevons ce mail de Sophie...
------------------------------------------
Merci de nous donner la parole, car nous ne savons plus quoi faire pour nous faire entendre. Ce n'est pas un article, juste une précision.
La mairie du XIV vient de faire démarrer des travaux avenue du Maine et rue du Départ. Si des améliorations ont bien été demandées par les habitants du quartier, en particulier le Comité de la rue Mouchotte, il est faux d'affirmer, comme l'écrit la Mairie dans la feuille d'information qu'elle a distribuée dans toutes les boîtes aux lettres, que les nouveaux aménagements ont été décidés après une large concertation avec les habitants du quartier.
Ceux-ci, en particulier le Comité de quartier et le Comité de défense de la rue Mouchotte ont protesté plusieurs fois contre les travaux proposés estimant qu'ils n'amélioreraient pas la circulation dans ce quartier. Mais Mme Bellenger [ndlr : adjointe auprès du Maire du 14e en charge de la voirie] ne veut rien savoir. Elle confond "mise devant le fait accompli" avec "concertation". Merci de rétablir la vérité.
------------------------------------------
Sans nous prononcer sur le sujet évoqué (vos témoignages en "commentaires" de cette note infirmeront ou corroboreront...), il reste que la concertation n'est pas chose facile. De nombreuses réunions publiques rassemblant parfois jusqu'à plusieurs dizaines d'habitants - notamment lors des Conseils de quartier - restent hélas extrêmement confidentielles au regard des populations concernées par tel ou tel projet d'aménagement urbain. L'information locale peine toujours à circuler vers le plus grand nombre.
De plus, cette information, ces débats ne présagent en rien d'un accord des parties présentes - a minima élus + services techniques de la Ville + représentants des commerçants et habitants... Le calendrier politique et les engagements électoraux pouvant au final bousculer les meilleures intentions de départ.
Alors, cette concertation dont tout le monde parle aux 4 coins de l'arrondissement, paroles, paroles ou réalité bien ancrée dans ces (nouvelles) méthodes de gestion urbaine qui président à toutes décisions de requalification d'un axe, de modification d'un carrefour, etc. ? Vous avez la parole (*)...
Pierre
(*) ...Merci de rester courtois !
dimanche, 09 octobre 2005
Yves Cochet à l'Entrepôt
L'Entrepôt affirme à nouveau son caractère de lieu de culture non-partisan. Après Laurent Fabius et Claude Goasguen, c'est Yves Cochet, député Vert de la 11e circonscription de Paris (14e arrondissement) qui investira l'Entrepôt pour une conférence organisée par l'association R.E.V.E de Olivier Duhamel.
Thème de la conférence : la crise pétrolière - un sujet sur lequel Yves Cochet vient de publier un livre : "Pétrole Apocalypse".
Pierre
Plus d'info :
+ Conférence sur la crise pétrolière - lundi 10 octobre 2005 à partir de 19h à l'Entrepôt - 7/9 rue Francis de Pressensé - Métro Pernety.
+ ...Sur le site perso d'Yves Cochet : www.yvescochet.net
07:00 Publié dans 14e arrondissement, Culture, Pernety Plaisance, Sorties et bons plans, Vie Citoyenne | Lien permanent | Commentaires (2) | Tags : Paris 14e arrondissement
samedi, 08 octobre 2005
Réouverture du marchand de journaux à Plaisance
Tandis que les habitants du quartier Porte d'Orléans pleurent - plus un seul kiosque ouvert du vendredi soir au lundi matin - ceux du métro Plaisance sourient. Le marchand de journaux vient en effet d'être repris. Par qui ? Régina et Emilio Lanchas. Depuis quand ? Ils ont ouvert le 26 septembre dernier...

Régina et Emilio ne sont pas des nouveaux venus dans le métier. Mais ils trouvaient le quartier plaisant (sic !), sympa et animé, alors en voyant le kiosque à vendre, ils ont décidé de reprendre cette affaire. Ils soulignent qu'ils ont été très bien accueillis par les gens, habitants, commerçants du quartier Plaisance qui sont venus à leur rencontre.
On leur souhaite bonne chance !
Gilles
Plus d'info :
+ Les horaires : tous les jours sauf dimanche. 7h - 13h (voir 13h30) et 15h - 19h30. Le samedi sans coupure.
+ Tout sur le quartier Pernety - Plaisance...
07:00 Publié dans 14e arrondissement, Commerce de proximité, Culture, Pernety Plaisance | Lien permanent | Commentaires (0) | Tags : Paris 14e arrondissement
vendredi, 07 octobre 2005
Petites annonces de proximité : une livraison attendue
Dans notre série "le panneau de la boulangère", voici notre dernière fournée de petites annonces de proximité. Bonne lecture !
------------------------------------
Annonce réf. 031020052257
Bonjour,
Nous vendons un canapé convertible futon (marque omoté futon), de couleur noir et rouge, déhoussable, lavable en machine, bon état, prix: 200 euros (valeur origine: 800 euros).
Répondre à cette annonce et obtenir les coordonnées du contact
------------------------------------
Annonce réf. 031020052036
Je recherche un baby sitter pour s’occuper de mon fils de 5 ans, de manière occasionnelle (sorties d’école ou soirées) et pour une dizaine de lundi dans l’année scolaire, de 16h30 à 20h. Merci d'avance. Maud.
Répondre à cette annonce et obtenir les coordonnées du contact
------------------------------------
Annonce réf. 031020051525
Bonjour...
Je suis Toulousaine, je viens d'être embauchée à la Croix-Rouge et je recherche
un appartement à louer précisément dans le 14ème..
Studio ou 2 pièces, dans les 500-550?., immédiatement ou dans le courant du
mois.. Caution parentale si besoin.
Répondre à cette annonce et obtenir les coordonnées du contact
------------------------------------
Annonce réf. 300920051644
Bonjour,
Nous recherchons une famille pour garde partagée secteur Mouton-Duvernet, Alésia, Denfert, Pernety, pour notre petite Lou, 3 mois et demi debut novembre, date a laquelle nous souhaitons démarrer la garde. Deux détails de taille : à votre domicile uniquement pour cause de 5eme etage sans ascenseur chez nous... et jusqu'à 20h, 5 jours par semaine. Last but not least, nous avons potentiellement trouvé une nounou...
voilà, nous attendons vos msg...
Répondre à cette annonce et obtenir les coordonnées du contact
------------------------------------
Annonce réf. 260920051156
A vendre : FORD FIESTA 6 CV - OCT. 1997 - 150 000 KM - CHAÎNE DISTRIBUTION ET EMBRAYAGE NEUFS - Couleur nordic green, direct. assistée, vitres élect., radio/CD, pneus larges, jantes alu., antibrouillards. TBE. Visible Paris 14e (photo par mèl sur demande). 2 900 EUROS.
Répondre à cette annonce et obtenir les coordonnées du contact
------------------------------------
Annonce réf. 240920051919
Je recherche des archives ou des documents relatant l'action de la résistance, dont mon père et mon oncle faisaient partie, durant l'époque de 1940 à 1944 dans le quatorzième arrondissement. Merci de me contacter...
Répondre à cette annonce et obtenir les coordonnées du contact
------------------------------------
Annonce réf. 061020050929
Cherche baby-sitter / garde d’enfants pour sorties d’école + devoirs, du lundi au vendredi de 16h30 à 19h30, 1 enfant (10 ans). Proximité impérative. A partir d’octobre 2005. Alésia.
Répondre à cette annonce et obtenir les coordonnées du contact
------------------------------------
Annonce réf. 061020051900
Je cherche un atelier. Je suis sculpteur même à partager...
Répondre à cette annonce et obtenir les coordonnées du contact
------------------------------------
Annonce réf. 061020051903
L'association des artistes de Plaisance Pernety recherche des artistes pour promouvoir le quartier. Si cela vous interesse vous pouvez me contacter...
Répondre à cette annonce et obtenir les coordonnées du contact
------------------------------------
Annonce réf. 041020052310
Bonjour,
J'habite rue de la Tombe-Issoire et cherche une petite salle de sport où les abonnements ne seraient pas trop élevés.
Pouvez vous m'en conseiller une ? Merci d'avance
Répondre à cette annonce et obtenir les coordonnées du contact
------------------------------------
Voilà. C'était notre livraison du jour !
Pierre
Plus d'info :
+ Besoin d'un coup de main, d'un coup de pouce, d'un baby-sitter, d'embaucher et tant qu'à faire pas loin de chez vous ? Envoyez-nous vos annonces de proximité. Si, si... C'est gratuit !
+ Consulter les annonces précédentes...
+ ...Notre site est animé par des bénévoles. Il peut y avoir un délai avant parution assez important. Merci de nous indiquer le degré d'urgence de votre recherche et la station de métro la plus proche, la proximité étant un facteur important de retour sur vos annonces.
14:30 Publié dans 14e arrondissement, 14e pratique, 14e solidaire, Petites Annonces | Lien permanent | Commentaires (0) | Tags : Paris 14e arrondissement
Inauguration de la place Marcel Paul dans le 14e arrondissement
Aujourd'hui, vendredi 7 octobre à partir de 15h45, sera inaugurée la place Marcel Paul (1900-1982), au niveau du 69 rue Raymond Losserand (voir le plan du quartier).
Marcel Paul était pupille de l'Assistance publique. Agé de deux jours, il est retrouvé abandonné sur un banc de la place Denfert-Rochereau. De père et de mère inconnus, il est déclaré à l'état civil sous le nom de Marcel.
Résistant, déporté, conseiller d'arrondissement et député communiste du XIVe, cofondateur de la FNDIRP, Marcel Paul fut, au lendemain de la guerre, Ministre de la Production industrielle du Général de Gaulle. Il pilote la nationalisation des industries électriques et gazières, porte sur les fonts baptismaux EDF-GDF et le statut des personnels du groupe public (électriciens et gaziers).
Depuis 1988, la FNDIRP attribue un prix portant son nom.
Brice
Plus d'info :
+ Dans les archives de l'Humanité, un article consacré à Marcel Paul.
07:00 Publié dans 14e arrondissement, Pernety Plaisance, Vie Citoyenne | Lien permanent | Commentaires (5) | Tags : Paris 14e arrondissement
jeudi, 06 octobre 2005
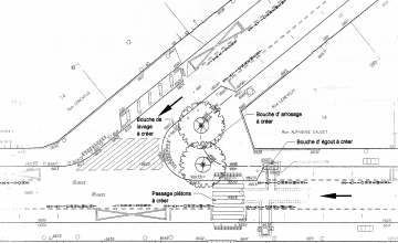
Rue Alphonse Daudet : c’est parti
A la demande des riverains et des commerçants de la rue Alphonse Daudet, le Conseil de quartier Jean Moulin Porte d’Orléans a été entendu par la Mairie, et les travaux ont déjà commencé. La demande sur cet endroit portait sur la plantation de deux arbres – arbres demandés par les riverains depuis plus de dix ans.

Pour cette plantation, les services de la voirie ont étudié un réaménagement global de l’angle des deux rues, lieux où les piétons traversaient sans protection sur la rue Daudet, et où les voitures étaient garées la plupart du temps sur le passage protégé de la rue Leneveux.
Budget accordé
Un reliquat du budget de voirie, basculé sur ce secteur va permettre de réaliser les travaux : création d’un nouveau passage piétons rue Alphonse Daudet, création de deux oreilles de trottoirs pour le cheminement piéton, déviation des réseaux souterrains EDF et GDF, création d’une bouche d’égouts, d’une bouche de lavage et d’une bouche d’arrosage en sous sols, pour enfin permettre la plantation des deux arbres, qui devraient être des poiriers à fleurs blanches. Le coût estimé de 58000 euros ne pèsera donc pas sur les autres projets de voirie du 14ème, le budget devant être utilisé au plus vite sous peine d’être retiré de l’arrondissement d'ici la fin de l'année.
Quand un Conseil de quartier est énergique et soudé, il peut se faire entendre (...et encore plus sur un sujet consensuel), et revendique ici sa première réalisation concrète pour l'amélioration du paysage urbain. D'autre réalisations issues des Conseils suivront sans aucun doute dans l'arrondissement, au vu et au nombre des projets déposés devant les services techniques, et c'est on ne peut plus encourageant pour affirmer la nécessité et la réalité des engagements citoyens pour une démocratie de proximité.
Dan
Plus d'info :
+ ...Sur le quartier Alésia - Porte d'Orléans ? Notre fil d'actu.
16:25 Publié dans 14e arrondissement, 14e solidaire, Environnement, Porte d'Orléans Alésia, Vie Citoyenne | Lien permanent | Commentaires (5) | Tags : Paris 14e arrondissement
Des créneaux pour les rollers ?
...Et pas n'importe lesquels. L'ASLAA (Association Sports et loisirs pour Aveugles et Amblyopes) envisage de mettre en place une section roller dans le 14ème ouverte à tous. L'objectif est de promouvoir l'intégration des personnes aveugles et malvoyantes au travers d'une activité dynamique et conviviale.
Reçue le 2 septembre 2005 dernier par Karine Petit, adjointe auprès du Maire du 14e en charge de la jeunesse et des sports, l'association a fait part de son désir de se voir attribuer un créneau horaire - 2 heures pour une vingtaine de personnes handicapées intéressées - dans l'un des nombreux gymnases du 14ème, et pourquoi pas dans les tous récents Gymnase Alice Milliat ou rollerparc du Stade Jules Noël ?
L'association s'inquiète aujourd'hui de ne pas avoir reçu de réponse de la part de la Mairie. Un bon mois, ce n'est peut-être pas très long, mais il serait regrettable que ce projet tombe à l'eau car l'association a déjà trouvé un premier bénévole qui accepterait d'encadrer cette activité. Alors, le sport pour tous, une priorité pour la Mairie ? Très certainement. Des "personnes à mobilité réduite" en roller, ce serait tout de même une belle image...
Céline
Plus d'info :
+ Le site officiel de l'association : www.aslaa.org
+ Vous pratiquez le roller assiduement et aimeriez proposer vos compétences pour encadrer cette activité : info@aslaa.org
+ Une section roller existe déjà à Montreuil, mais dans un autre genre, l'ASLAA organise également des séjours au ski et des balades en tandem ou à cheval... Voilà qui devrait satisfaire vos envies de bénévolat, n'est-ce pas ?
07:00 Publié dans 14e arrondissement, 14e solidaire, Loisirs, Mairie du 14e, Sport | Lien permanent | Commentaires (2) | Tags : Paris 14e arrondissement
mercredi, 05 octobre 2005
Blog des parents d'élèves de la rue Prisse d'Avennes...
...C'est tout bête, mais perso, je trouve ça génial. Bravo Muriel pour cette superbe expérience en ligne ! J'espère que très prochainement, toutes les écoles du 14e pourront disposer de tels outils !
Pierre
Plus d'info :
+ ...Et si vous avez besoin d'un coup de main ou d'un renseignement sur tout ce qui est création de blogs, n'hésitez pas à nous contacter, on commence à avoir une certaine maîtrise du sujet :-)
20:00 Publié dans 14e arrondissement, 14e pratique, Jeunesse, Petite enfance, Porte d'Orléans Alésia | Lien permanent | Commentaires (0) | Tags : Paris 14e arrondissement
Chat avec René Dutrey : le compte-rendu
René Dutrey, 1er adjoint Vert à la Mairie du 14e (en charge de l’environnement, des espaces verts et du tri sélectif) et Président du groupe des Verts au Conseil de Paris était hier, l'invité des Forums du NouvelObs.com pour un échange - parfois plein d'humour - avec les internautes. Le compte-rendu de ce jeu de questions-réponses est disponible en ligne. Lien direct en cliquant ici.
Pierre
Plus d'info :
+ Allez, pour ceux qui n'iront pas voir ce compte-rendu, notre extrait préféré :
Question : Que répondez-vous à ceux qui disent que les Verts ne sont pas murs ?
René Dutrey : Je préfère qu’ils ne soient pas tout à fait murs que déjà tout à fait séniles !
14:00 Publié dans 14e arrondissement, Environnement, Logement, Mairie du 14e, Vie Citoyenne | Lien permanent | Commentaires (0) | Tags : Paris 14e arrondissement
Avenir Scooter : il est passé par ici...
...Et il repassera par là.
Vous êtes nombreux à vous être interrogés sur la disparition d'Avenir Scooter, porte d'Orléans. Installés là depuis belle lurette, Ely et son équipe étaient en effet devenus des figures sympathiques du quartier et la fermeture, du jour au lendemain ou presque, en a surpris plus d'un.
Une petite enquête auprès des voisins nous apprend que le bail d'Ely n'aurait pas été renouvelé par la Ville car celle-ci souhaitait récupérer le local pour y réaliser un point d'information Tramway.
Il semble qu'Ely ait trouvé l'espace qui convenait à son activité à Arcueil. Ceux qui souhaitent rester client iront donc 101, avenue Aristide Briand (voir le plan du quartier). Téléphone : 01 49 86 13 00.
Jean






